- Der Dampfbackofen in 60cm Höhe: perfekt backen, saftig dampfbacken oder schonend dämpfen.
- Dampfbacken: durch Zugabe von Wasserdampf werden Speisen außen knusprig und innen saftig.
- Assist-Funktion: automatische Einstellung von optimaler Heizart, Temperatur und Dauer für unzählige Gerichte.
- Bedienung mit TFT-Touchdisplay: einfache Bedienung dank Bedienring mit Klartext und Abbildungen.
- EcoClean Direct: kaum Putzaufwand dank spezieller Beschichtung, die Fette automatisch absorbiert.
- ColorGlass: eine brillante Alternative zu Edelstahl durch schwarze Glasfronten.
Highlights
Nachhaltigkeit
Ideale Kombination: immer saftig, gesund und knusprig.
Sensor-Backöfen mit Dampffunktion sind zwei Geräte in einem. Klassischer Backofen und Dampfgarer. Sie können damit backen, braten, grillen und dämpfen. Mit der Dampffunktion wird Ihren Speisen bei der Zubereitung mit einer klassischen Heizart kontinuierlich Feuchtigkeit in Form von Wasserdampf zugeführt. Braten gelingen innen saftig und außen schön knusprig. Backöfen mit Dampffunktion können auch zum ausschließlichen dämpfen von Gemüse und Fisch verwendet werden.
Leistung
Verwandelt Ihren Backofen in eine perfekte Reinigungshilfe.
Mit EcoClean Direct, der energiesparenden Reinigungshilfe, ist die Backofenreinigung ganz einfach. Eine Spezialbeschichtung aus mikrofeinen Keramikpartikeln auf der Rückwand zersetzt Fettspritzer, während Sie backen oder braten – und das ein Geräteleben lang. Das spart Zeit und Energie.
Dämpft so schonend, dass sogar die Vitamine zum Essen bleiben.
Sanft dampfgegartes Gemüse bleibt bissfest, Fisch und Geflügel saftig und zart. Beim Garen unter heißem Dampf bleiben nicht nur Vitamine und Mineralstoffe erhalten, sondern auch der volle, natürliche Geschmack. Sie können also ruhig sparsam würzen und kommen beim Kochen mit deutlich weniger Salz aus. Sogar auf die Zugabe von Öl oder Fett können Sie beim Dampfgaren verzichten.
Technische Daten:
Komfort:
- Klapptür, Backofentür, gedämpft, vollgedämpft
- Bosch Assist
- TFT-Touchdisplay mit Klartextanzeige
- Wassertank mit 1 l
- Leeranzeige Wassertank
- Infotaste
- Elektronik-Uhr
- Elektronische Temperaturregelung von 30 °C – 250 °C
- LED-Innenbeleuchtung, Backofenbeleuchtung abschaltbar
Backofentyp und Heizart:
- Dampfbackofen mit 12 Beheizungsarten:
- 4D Heißluft, + Heißluft Eco, Ober-/Unterhitze, Ober-/Unterhitze Eco, Umluft-Infra-Grill, Großflächengrill, Kleinflächengrill, Pizzastufe, Unterhitze, Sanftgaren, Vorwärmen, Warmhalten
- Schnellaufheizung
- Zusätzliche Beheizungsarten mit Dampf: Dampfgaren, Regenerieren, Gären, Auftauen
- Externe Dampferzeugung
- Edelstahl-Lüfterrad
- Garraumvolumen: 71 l
Zubehörträger / Auszugssystem:
- Backofen mit Einhängegestell, Auszug nachrüstbar
Reinigung:
- Ecoclean-Ausstattung: Rückwand
- Vollglas-Innentür
Design:
- intuitive Bedienring
Umwelt und Sicherheit:
- Komfort-Tür mit max. 40°C
- (Messung bei 180°C Backofentemperatur / Heizart Ober-/Unterhitze nach 1 Stunde in der Fenstermitte)
- Kindersicherung
- Sicherheitsabschaltung
- Restwärmeanzeige
- Starttaste
- Türkontaktschalter
- Energieeffizienzklasse (gem. EU Nr. 65/2014): A+
- Energieverbrauch pro Zyklus im konventionellen Modus: 0.87 kWh
- Energieverbrauch pro Zyklus im Umluft-Modus: 0.69 kWh
- Zahl der Garräume: 1
- Wärmequelle: elektrisch
- Innenraumvolumen: 71 l
Zubehör:
- 1 x Backblech emailliert, 1 x Dampfbehälter, gelocht, Größe S, 1 x Dampfbehälter, gelocht, Größe XL, 1 x Dampfbehälter, ungelocht, Größe S, 1 x Rost, 1 x Universalpfanne
Technische Info:
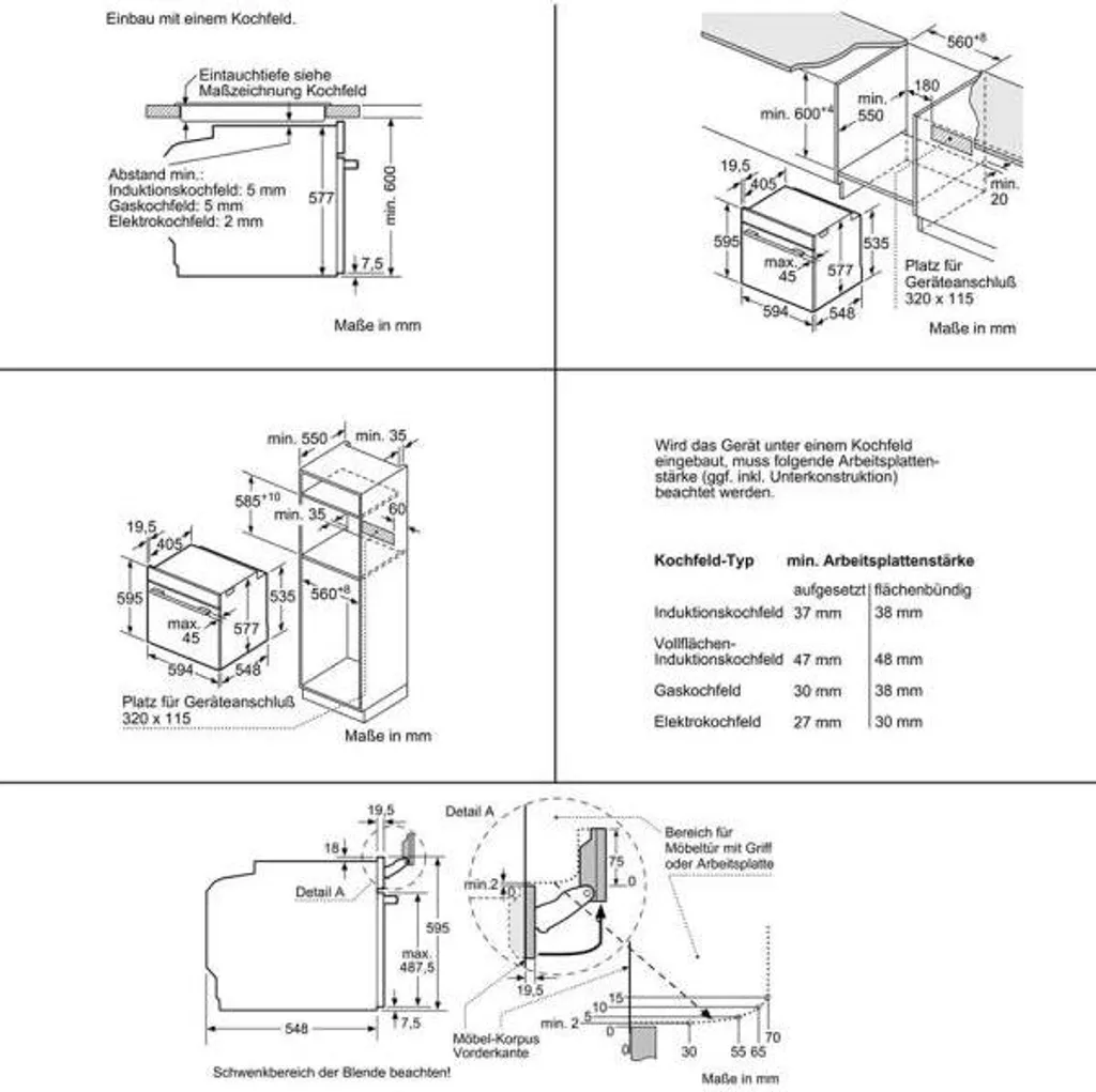
- Gerätemaße (HxBxT): 595 x 595 x 548 mm
- Nischenmaße (HxBxT): 585 – 595 x 560 – 568 x 550 mm
- Nettogewicht (kg): 40,815
- Länge Netzkabel: 120 cm
- Gesamtanschlusswert Elektro: 3.65 kW
„Maße und Einbauhinweise zu diesem Gerät gemäß technischer Zeichnung beachten“
Backofentyp und Heizart
- Dampfbackofen mit 12 Beheizungsarten: 4D Heißluft, + Heißluft sanft, Ober-/Unterhitze, Ober-/Unterhitze Eco, Umluft-Infra-Grill, Großflächengrill, Kleinflächengrill, Pizzastufe, Unterhitze, Sanftgaren, Vorwärmen, Warmhalten
- Zusätzliche Beheizungsarten mit Dampf: Dampfgaren, Regenerieren, Gären, Auftauen
- Elektronische Temperaturregelung von 30 °C – 250 °C
- Garraumvolumen: 71 l
Zubehörträger / Auszugssystem:
- Einschubebenen: 5
- Auszug nachrüstbar
Design
- intuitiver Bedienring
Reinigung
- Ecoclean-Ausstattung: Rückwand
- Vollglas-Innentür
Komfort
- TFT-Touchdisplay mit Klartextanzeige
- Elektronikuhr
- Temperaturvorschlag Optische Aufheizkontrolle Ist-Temperaturkontrolle Sabbatschaltung
- Zusatzfunktionen: Entkalkungsprogramm Automatischer Siedepunktabgleich Trocknungsfunktion
- Klapptür, mit SoftClose, und SoftOpen
- Backofengriff aus Aluminium
- Bosch Assist
- Schnellaufheizung
- Backofenbeleuchtung abschaltbar, LED-Innenbeleuchtung
- Wassertank mit 1 l
- Leeranzeige Wassertank
- Externe Dampferzeugung
- Kühlgebläse
Zubehör
- 1 x Universalpfanne, 1 x Backblech emailliert, 1 x Rost, 1 x Dampfbehälter, gelocht, Größe XL, 1 x Dampfbehälter, gelocht, Größe S, 1 x Dampfbehälter, ungelocht, Größe S
Umwelt und Sicherheit
- Geringe Türtemperatur
- Kindersicherung Sicherheitsabschaltung Restwärmeanzeige Starttaste Türkontaktschalter
Technische Info:
- 120 cm
- Nennspannung: 220 – 240 V
- Gesamtanschlusswert Elektro: 3.6 kW
- Energieeffizienzklasse (gem. EU Nr. 65/2014): A+ (auf einer Energieeffizienzklassen-Skala von A+++ bis D) Energieverbrauch pro Zyklus im konventionellen Modus: 0.87 kWh Energieverbrauch pro Zyklus im Umluft-Modus: 0.69 kWh Zahl der Garräume: 1 Wärmequelle: elektrisch Innenraumvolumen: 71 l
Maße
- Gerätemaße (HxBxT): 595 x 594 x 548 mm
- Nischenmaße (HxBxT): 595 mm x 560 mm x 550 mm
- „Maße und Einbauhinweise zu diesem Gerät gemäß technischer Zeichnung beachten“
- Farbe Gerät: Schwarz
- Bauform: Eingebaut
- Steuerung: Elektronisch
- Bedienelemente: Hauptschalter, Türkontaktschalter
- Material Kontrollblende: Glas
- Material der Tür: Glas
- Anschlusswert: 3600 W
- Absicherung: 16 A
- Spannung: 220-240 V
- Frequenz: 60; 50 Hz
- Länge Anschlusskabel: 120 cm
- Steckerart: Schuko-/Gardy.m.Erdung
- Tiefe Produkt bei geöffneter Tür (90°): 104 cm
- Gerätehöhe: 59,5 cm
- Gerätetiefe: 54,8 cm
- Gerätebreite: 59,4 cm
- Höhe des Innenraums: 35,5 cm
- Tiefe des Innenraums: 41,5 cm
- Breite Garraum: 48 cm
- Höhe verpacktes Gerät: 67,5 cm
- Tiefe verpacktes Produkt: 69 cm
- Breite verpacktes Gerät: 66 cm
- Nischenhöhe minimal: 58,5 cm
- Nischenhöhe maximal: 59,5 cm
- Nischenbreite minimal: 56 cm
- Nischentiefe: 55 cm
- Nischenbreite maximal: 56,8 cm
- Nettogewicht: 40,811 kg
- Zusatzfunktionen: Automat. Siedepunktabgleich, Entkalkungsprogramm
- Bruttogewicht: 43,1 kg
- Betriebsarten: Auftauen, Dampf 100%, Gären, Großflächengrill, Heißluft-Eco, Kleinflächengrill, Ober-/Unterhitze, Pizzastufe, Regenerieren, Sanftgaren, Umluftgrill, Unterhitze, Vorwärmen, Warmhalten
- Energieverbrauch Umluftbetrieb: 0.69 kWh
- Art der Türöffnung: Klapptür
- Wählbare Sprachen im Display: albanisch, bulgarisch, dänisch, deutsch, englisch, estnisch, finnisch, französisch, griechisch, hebräisch, italienisch, kroatisch, lettisch, litauisch, mazedonisch, niederländisch, norwegisch, polnisch, portugiesisch, rumänisch, russisch, schwedisch, serbisch, slowakisch, slowenisch, spanisch, tschechisch, türkisch, ukrainisch, ungarisch
- Lage Dampfgenerator: Außerhalb des Garraumes
- Wasserzuführung: Wassertank
- Volumen Wassertank: 1.0 l
- Temperatur regelbar: 30 – 100
- Zeitsteuerung: Elektronisch
- Sicherheitsvorrichtungen: Kindersicherung, Restwärmeanzeige, Sicherheitsabschaltg. Backofen, Starttaste
- Innenbeleuchtung: Ja
- Software update: Nein
- Backblechführung: Gitter
- RECYCLING_WEIGHT_CARDBOARD: 0.871
- RECYCLING_WEIGHT_EPS: 0.823
- RECYCLING_WEIGHT_PLASTIC: 0.105
- RECYCLING_WEIGHT_WOOD: 0.540
- RECYCLING_WEIGHT_OTHER: 0.000
- RECYCLING_WEIGHT_PACKAGING: 1.799
Der Dampfbackofen in 60cm Höhe: perfekt backen, saftig dampfbacken oder schonend dämpfen.
Komfort
Klapptür, Backofentür, gedämpft, vollgedämpft
Bosch Assist
TFT-Touchdisplay mit Klartextanzeige
Wassertank mit 1 l
Leeranzeige Wassertank
Infotaste
Elektronik-Uhr
Elektronische Temperaturregelung von 30 °C – 250 °C
LED-Innenbeleuchtung, Backofenbeleuchtung abschaltbar
Backofentyp und Heizart
Dampfbackofen mit 12 Beheizungsarten:
4D Heißluft, + Heißluft Eco, Ober-/Unterhitze, Ober-/Unterhitze Eco, Umluft-Infra-Grill, Großflächengrill, Kleinflächengrill, Pizzastufe, Unterhitze, Sanftgaren, Vorwärmen, Warmhalten
Schnellaufheizung
Zusätzliche Beheizungsarten mit Dampf: Dampfgaren, Regenerieren, Gären, Auftauen
Externe Dampferzeugung
Edelstahl-Lüfterrad
Garraumvolumen: 71 l
Zubehörträger / Auszugssystem
Backofen mit Einhängegestell, Auszug nachrüstbar
Reinigung
Ecoclean-Ausstattung: Rückwand
Vollglas-Innentür
Design
intuitiver Bedienring
Umwelt und Sicherheit
Komfort-Tür mit max. 40°C
(Messung bei 180°C Backofentemperatur / Heizart Ober-/Unterhitze nach 1 Stunde in der Fenstermitte)
Kindersicherung
Sicherheitsabschaltung
Restwärmeanzeige
Starttaste
Türkontaktschalter
Energieeffizienzklasse (gem. EU Nr. 65/2014): A+ (A+++ -D)
)*Auf einer Skala von A+++ (sehr effizient) bis D (weniger effizient)
Energieverbrauch pro Zyklus im konventionellen Modus: 0.87 kWh
Energieverbrauch pro Zyklus im Umluft-Modus: 0.69 kWh
Zahl der Garräume: 1
Wärmequelle: elektrisch
Innenraumvolumen: 71 l
Zubehör
1 x Backblech emailliert, 1 x Dampfbehälter, gelocht, Größe S, 1 x Dampfbehälter, gelocht, Größe XL, 1 x Dampfbehälter, ungelocht, Größe S, 1 x Rost, 1 x Universalpfanne
Technische Info
Gerätemaße (HxBxT): 595 x 595 x 548 mm
Nischenmaße (HxBxT): 585 – 595 x 560 – 568 x 550 mm
Länge Netzkabel: 120 cm
Gesamtanschlusswert Elektro: 3.65 kW
„Maße und Einbauhinweise zu diesem Gerät gemäß technischer Zeichnung beachten“
| Produktgruppe | Dampfbackofen |
| EAN-Nummer | 4242002808383 |
| Gerätefarbe | Schwarz |
| Bauform | Einbau |
| Steuerung | elektronisch |
| Bedienelemente | Hauptschalter , Türkontaktschalter |
| Material der Blende | Glas |
| Material der Tür | Glas |
| Material Garraum | Emailliert |
| Anschlusswert (W) | 3600 |
| Absicherung (A) | 16 |
| Spannung (V) | 220-240 |
| Frequenz (Hz) | 60;50 |
| Länge Anschlusskabel (cm) | 120 |
| Steckerart | Schuko-/Gardy.m.Erdung |
| Tiefe Produkt bei geöffneter Tür (90°) (mm) | 1040 |
| Gerätehöhe (mm) | 595 |
| Gerätebreite (mm) | 594 |
| Gerätetiefe (mm) | 548 |
| Höhe Garraum (mm) | 355 |
| Breite Garraum (mm) | 480 |
| Tiefe Garraum (mm) | 415 |
| Höhe verpacktes Gerät (mm) | 675 |
| Breite verpacktes Gerät (mm) | 660 |
| Tiefe verpacktes Produkt (mm) | 690 |
| Nischenhöhe minimal (mm) | 585 |
| Nischenhöhe maximal (mm) | 585 |
| Nischenbreite minimal (mm) | 560 |
| Nischenbreite maximal (mm) | 560 |
| Nischentiefe (mm) | 550 |
| Nettogewicht (kg) | 41,0 |
| Bruttogewicht (kg) | 43,0 |
| Anzahl der Innenräume | 1 |
| Nutzinhalt (des Innenraums) l | 71 |
| Energie-Effizienz-Klasse )*Auf einer Skala vin A+++ (sehr effizient) bis D (weniger effizient) | A+ (A+++ -D) |
| Energieeffizienzindex | 81,2 % |
| Beheizungsarten | 4D-Heißluft , Auftauen , Dampf 100% , Gären , Großflächengrill , Heißluft-Eco , Kleinflächengrill , Ober-/Unterhitze , Ober-/Unterhitze ECO , Pizzastufe , Regenerieren , Sanftgaren , Umluftgrill , Unterhitze , Vorwärmen , Warmhalten |
| Sicherheitsvorrichtungen | Kindersicherung , Restwärmeanzeige , Sicherheitsabschaltg. Backofen , Starttaste , Türkontaktschalter |
| Innenbeleuchtung | Ja |
| Anzahl eingebauter Leuchten | 1 |
| Gitter | 1 |
| Backbleche | 5 |
| Integriertes Zubehör | 1 x Backblech emailliert, 1 x Dampfbehälter, gelocht, Größe S, 1 x Dampfbehälter, gelocht, Größe XL, 1 x Dampfbehälter, ungelocht, Größe S, 1 x Rost, 1 x Universalpfanne |
Kurze zusammenfassende Beschreibung Bosch HSG636BB1 Backofen 71 l A+ Schwarz:
Bosch HSG636BB1, Groß, Elektrischer Ofen, 71 l, 71 l, Integriert, Schwarz
Lange zusammenfassende Beschreibung Bosch HSG636BB1 Backofen 71 l A+ Schwarz:
Bosch HSG636BB1. Ofengröße: Groß, Ofentyp: Elektrischer Ofen, Garraumvolumen Gesamteinheit: 71 l. Geräteplatzierung: Integriert, Produktfarbe: Schwarz, Steuerung: Berührung. Uhrtyp: Elektronisch. Energieeffizienzklasse: A+. Breite: 595 mm, Tiefe: 548 mm, Höhe: 595 mm
Produktdetails:
Energieeffizienzklasse: A+ Farbe: schwarz Nutzinhalt: 71l Programmanzahl: 12 Programme: 4D Heißluft, + Heißluft sanft, Ober-/Unterhitze, Ober-/Unterhitze Eco, Umluftgrill, Großflächengrill, Kleinflächengrill, Pizzastufe, Unterhitze, Sanftgaren, Vorwärmen, Warmhalten, Dampfgaren, Regenerieren (Dampf), Gären (Dampf), Auftauen (Dampf) Temperaturbereich: 30-250°C Display: ja Reinigung: beschichtete Backofenwände (Emaille), katalytische Selbstreinigung (Rückwand), Entkalkungsprogramm Auszugssystem: nein, Auszug nachrüstbar Türsystem: Klapptür, mit Türdämpfung Sicherheit: kühle Front, Kindersicherung, Sicherheitsabschaltung Dampfsystem: ja, externe Wasserzufuhr, Wasserstandsanzeige, Wassertank 1l Ausstattung: Schnellaufheizung, Timer, Uhrzeitanzeige, Touch-Control-Bedienung, LED-Beleuchtung Energieverbrauch konventionelle Beheizung: 0.87kWh/Zyklus Energieverbrauch Umluft/Heißluft: 0.69kWh/Zyklus Kochfeldsteuerung: keine Nischenmaße (HxB): 60x60cm
Produktbeschreibung : Bosch Serie 8 HSG636BB1 – Backofen – eingebaut – Volcanic Black
Produkttyp : Backofen – Electric
Energie Effizienzklasse : Klasse A+
Hersteller : Bosch
Modell : Bosch Serie 8 – HSG636BB1
Gesamtkapazität des Ofens (netto) : 71 Liter
Herdgröße : Groß
Formfaktor : Eingebaut
Farbe : Volcanic Black
Steuerungstyp : Berührungsempfindlich
Selbstreinigend : Ja, katalytisch
Backofen : Elektroofen – 71 Liter
Sicherheitsmerkmale : Kindersicherheit, Abschaltautomatik, Restwärmeanzeige, Türschloss
Spannung : 220 – 240 V / 50/60 Hz
Abmessungen (Breite x Tiefe x Höhe) : 59.5 cm x 54.8 cm x 59.5 cm
Gewicht : 41 kg
- Anzahl der Öfen:
- 1
- Ofengröße:
- Groß
- Ofentyp:
- Elektrischer Ofen
- Garraumvolumen Gesamteinheit:
- 71 l
- Netto-Ofenvolumen:
- 71 l
- Grill:
- Ja
- Dampfgaren:
- Ja
- Aufwärmfunktion:
- Ja
- Geräteplatzierung:
- Integriert
- Produktfarbe:
- Schwarz
- Steuerung:
- Berührung
- Eingebaute Anzeige:
- Ja
- Display-Typ:
- TFT
- Integrierte Uhr:
- Ja
- Uhrtyp:
- Elektronisch
- Energieeffizienzklasse:
- A+
- Breite:
- 595 mm
- Tiefe:
- 548 mm
- Höhe:
- 595 mm
- Breite in cm:
- 59.4
- Nutzinhalt Gesamt in Liter:
- 71
- Beheizungsart Hauptbackofen:
- Ober-/Unterhitze + Umluft
- Selbstreinigung:
- katalytische Selbstreinigung
- Integrierte Uhr:
- ja
- Höhe in cm:
- 59.5
- Kochprogramme:
- ja
- Betriebsart Ofen:
- elektrisch
- Tiefe in cm:
- 56.8
- Bauart:
- Einbau
- Frontdekor:
- Glasdekor
- Produkttyp:
- Backofen
- Dampffunktion:
- ja
- Anzahl Backöfen:
- Einfach-Backofen
- Hitzeschutz-TÃ1/4r:
- ja
- Display:
- ja
- Energieverbrauch Um-/Heißluft in kWh:
- 0.69
- Energieverbrauch konventionelle Beheizung in kWh:
- 0.87
- Energieeffizienzklasse EU:
- A+
- Typ Dampffunktion:
- Dampfgaren
- Soft-Close-TÃ1/4r:
- ja
- Abmessungen in cm (B x H x T):
Dampfbackofen mit 12 Beheizungsarten: 4D Heißluft, + Heißluft Eco, Ober-/Unterhitze, Ober-/Unterhitze Eco, Umluft-Infra-Grill, Großflächengrill, Kleinflächengrill, Pizzastufe, Unterhitze, Sanftgaren, Vorwärmen, Warmhalten, Schnellaufheizung, zusätzliche Beheizungsarten mit Dampf: Dampfgaren, Regenerieren, Gären, Auftauen, Assist-Funktion, TFT-Touchdisplay mit Klartextanzeige, Kindersicherung, Sicherheitsabschaltung, Restwärmeanzeige, Starttaste, Türkontaktschalter, 1 Rost, 1 Dampfbehälter, gelocht, Größe XL, 1 Dampfbehälter, gelocht, Größe S, 1 Dampfbehälter, ungelocht, Größe S, 1 Backblech emailliert, 1 Universalpfanne
Bosch Serie | 8 HSG636BB1 – Backofen – mit Dampffunktion – eingebaut – Nische – – Breite: 56 cm – Tiefe: 55 cm – Höhe: 58.5 cm – mit Selbstreinigung – Klasse A+ – Schwarz
















































Rezensionen
Es gibt noch keine Rezensionen.